Casa indipendente in vendita

Cantalupo Ligure, Via Vivaio - Pallavicino
€ 65.000
4 locali 4 locali
86 Mq 86 Mq
1 bagno 1 bagno

Casa indipendente in vendita

Cantalupo Ligure, Via Vivaio - Pallavicino

Descrizione annuncio

CANTALUPO LIGURE - PALLAVICINO

Una casa dove il tempo rallenta, tra natura, silenzio e calore autentico

A Pallavicino, tranquilla frazione di Cantalupo Ligure, a meno di 10 minuti dal paese e dai negozi di prima necessità, ti aspetta una casetta che profuma di legna, natura e ricordi felici.

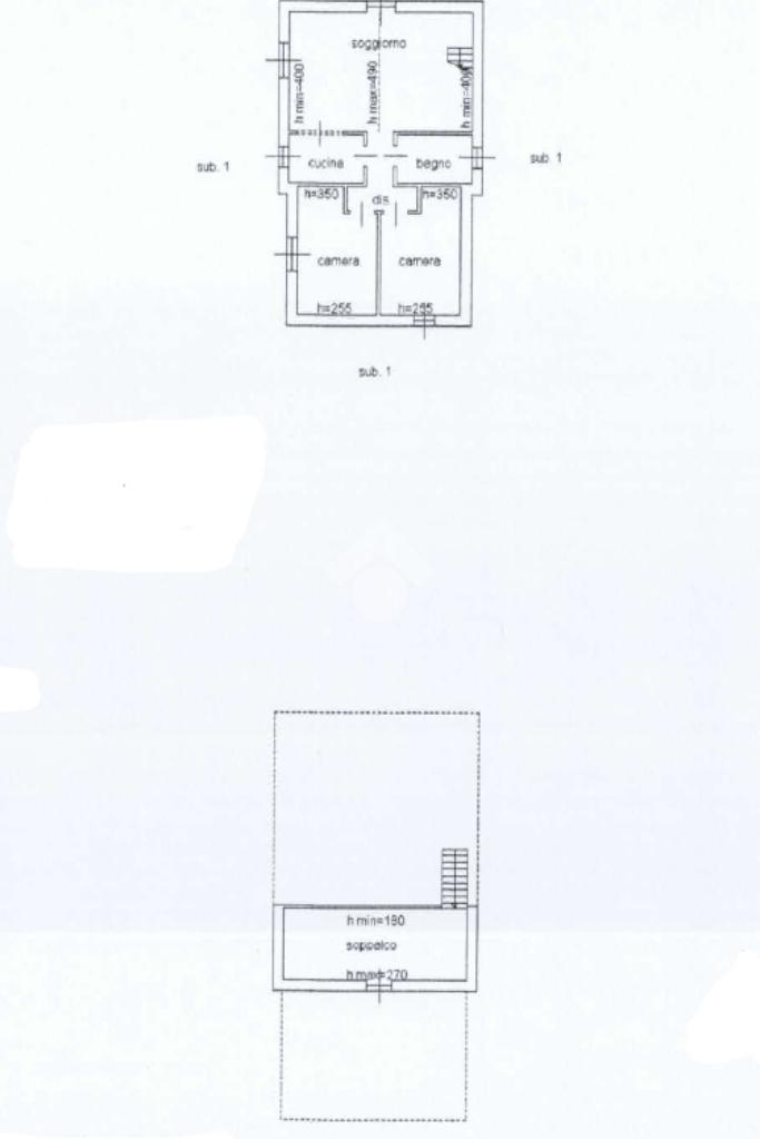
Costruita a metà degli anni ’70 e disposta su due livelli, questa casa ci accoglie con un soggiorno caldo e conviviale, impreziosito da un camino a legna, perfetto per le serate d’inverno. Il cucinotto è funzionale e raccolto, mentre al piano terra trovano spazio due camerette, ideali per figli, ospiti o uno studio, ed un bagno finestrato con doccia.

Salendo al piano superiore si apre una camera più ampia, soppalcata e mansardata, un ambiente intimo e suggestivo, perfetto come camera padronale o rifugio personale.

Completa la proprietà un locale accessorio di circa 13 mq, utilizzabile come box o cantina.

Il vero cuore della casa, però, è all’esterno:
un giardino ampio, carrabile, dove vivere la bella stagione in totale libertà. Qui trova spazio un forno a legna, ideale per pranzi e cene all’aperto con amici e famiglia, il tutto accompagnato da una vista aperta e meravigliosa sulla vallata e sulla natura circostante. Un panorama che regala pace, silenzio ed un contatto autentico con l’ambiente.

Una casa semplice, vera, perfetta come prima abitazione per chi ama la tranquillità, o come rifugio di campagna dove staccare dal ritmo frenetico della città.

Se cerchi un luogo dove respirare, rallentare e sentirti davvero a casa… potresti averlo appena trovato.

Mostra tutto

Nelle vicinanze

Trasporto pubblico Trasporto pubblico
Trasporto pubblico
450 m
Ristoranti Ristoranti
Ristorante Belvedere
1,1 Km
Mostra tutto

Caratteristiche

Rif.:
61173824
Piano:
Terra con giardino di 2
Totale piani:
2
Box:
1
Posti auto:
3
Terrazzi:
1
Mostra tutto
Prezzo Prezzo
€ 65.000
Rata mutuo Rata mutuo
€ 304 / mese
Spese annue Spese annue
€ 0
Proponi il tuo prezzoProponi il tuo prezzo

Classe Energetica

G
G
G
G
G
G
G
G
G
EP invernale del fabbricato:
EP estiva del fabbricato:
Anno di costruzione:
1974
Riscaldamento:
Autonomo
Tipo impianto:
A radiatori
Tipo alimentazione:
Gasolio

Ti interessa visionare l'immobile?

Fissa un appuntamento  Fissa un appuntamento

Richiedi informazioni

Clicca su Leggi per aprire l'informativa
* Questi campi sono obbligatori

Calcola il tuo mutuo

Semplice e senza impegno
Anticipo

( % )
Mutuo

( % )

pochi semplici passi

inserisci i tuoi dati
Questionario completato
Grazie per aver richiesto un appuntamento senza impegno con un nostro Consulente del Credito e Assicurativo.

Hai inserito correttamente tutti i dati necessari e a breve riceverai una e-mail con un link da convalidare per inviare i tuoi dati.
Affiliato
Studio Arquata Sas
P.zza Santo Bertelli, 42 15061 Arquata Scrivia (AL)

Il nostro staff


  • Alessio Bigotti
    Affiliato
P.zza Santo Bertelli, 42 15061 Arquata Scrivia (AL)
Zona: Arquata Scrivia-Vignole-Stazzano-Val Borbera
Mostra su mappa
Affiliato
Studio Arquata Sas
P.zza Santo Bertelli, 42 15061 Arquata Scrivia (AL)

2026 Tecnocasa Franchising S.p.A. - P. IVA 08365160152 - Via Monte Bianco 60/A 20089 Rozzano (MI). Ogni agenzia ha un proprio titolare ed è autonoma. Privacy policy | Policy utilizzo | Cookie policy